Premium Kayakata

プレミアム萱方I-II / 2階タイプ

募集中

シャープに暮らす45°2F

この物件の特長

・縦の空間を生かした三層のスキップフロア
・勾配天井と吹き抜けで開放感たっぷり
・帰ってきたときにホッとする、癒しの玄関間接照明
・見晴らしの良い広々バルコニー付き

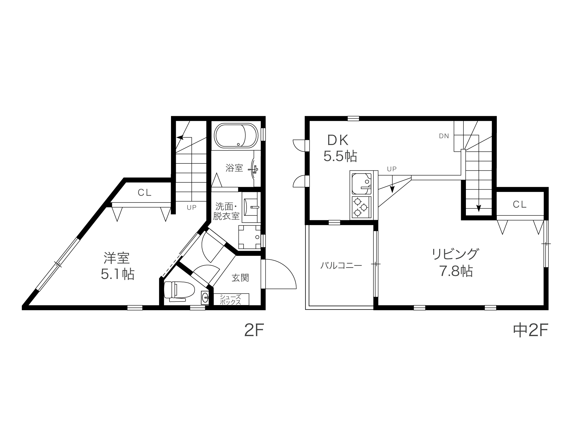
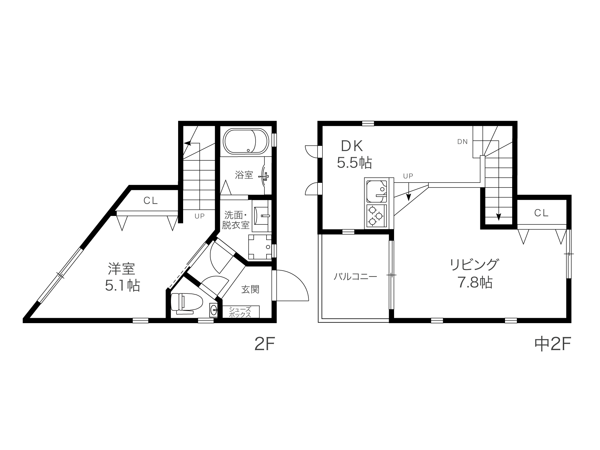
※写真と間取り図はI棟201号室のものです。部屋によって窓の数・方位に違いがございます。詳しくはお問い合わせください。

VACANCY空室リスト

  • 号室
    面積
    賃料
    敷金/礼金
    空室状況
  • プレミアム萱方Ⅱ
  • 全部屋満室となっております。
  • プレミアム萱方I
  • 202 号室

    面積
    29.81㎡
    賃料
    48,000円
    敷金/礼金
    無し/無し
    入居募集中

0120-083487

マイホーム情報不動産 / 営業時間 9:30~17:30

空室を確認する

さが賃貸ネット

間取図
物件 プレミアム萱方I-II
賃料 48,000 円
共益 3,000 円
間取り 1LDK
面積 29.81 ㎡ (9.01坪)
住所 佐賀県鳥栖市萱方町
交通 浅井より徒歩3 分
築年 2010年9月

設備

※ クリックで詳細が確認できます。

オートロック

玄関ドアは、鍵をバックにいれたままでもラクラク開け閉め可能!

その他設備

水道:公営、ガス:プロパン、バス・トイレ別、シャワー、コンロ:ガス、システムキッチン、給湯、洗髪洗面化粧台、冷暖房:エアコン、洗濯機置場:室内、BSアンテナ、バルコニー、フローリング、TVドアホン、温水洗浄便座、独立洗面、照明器具

物件情報備考

物件種別:アパート / 構造:木造合金メッキ鋼板葺 / 取引態様:代理 / 最終更新日:2026-03-23 / 次回更新:最終更新日より約2週間後

パノラマビューでお部屋体験

PANORAMA360°パノラマツアー

サムネイル表示

フルスクリーン表示

AREA物件周辺情報

プレミアム萱方I-IIの周辺情報

この物件をシェアする

CONTACTこの物件へのお問合せ

0120-083487

マイホーム情報不動産 / 営業時間 9:30~17:30

RECOMMEND他にもこんな物件がおススメです